208 Stonebrook Ct.Clear Lake, IA 50428




Mortgage Calculator
Monthly Payment (Est.)
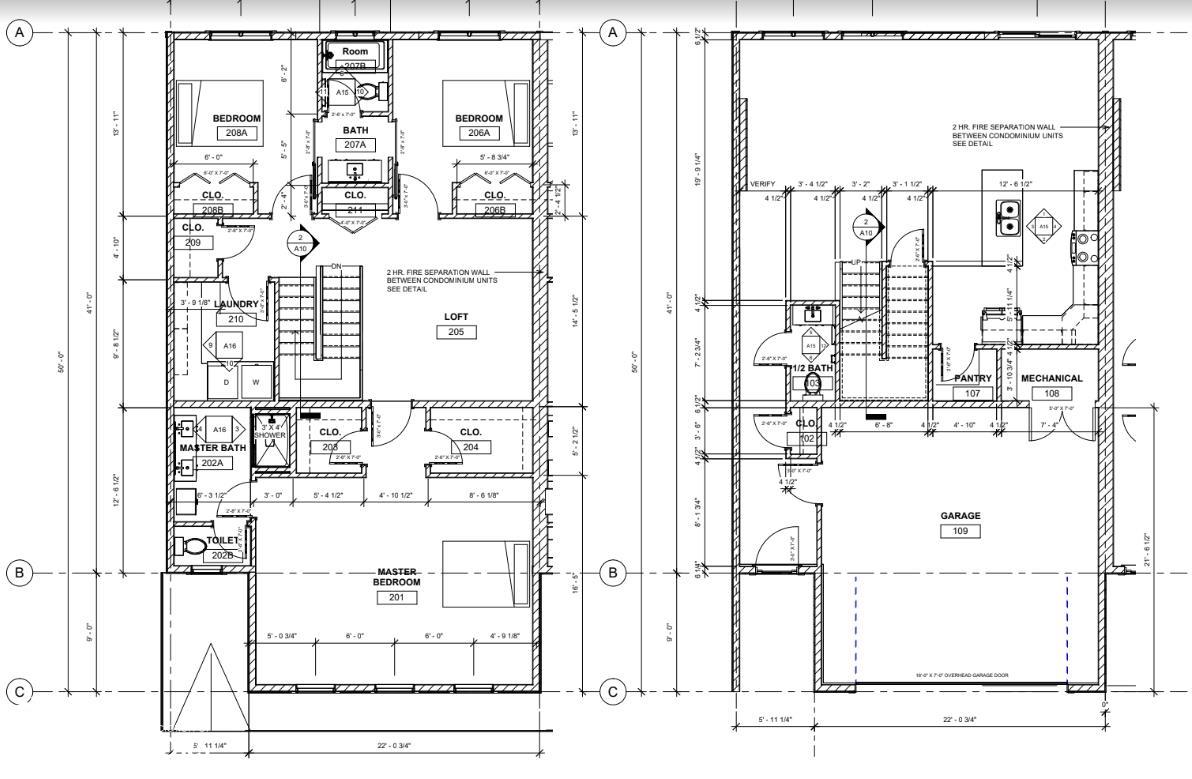
$1,971Framing is up on Building 2 at StoneBrook Condominiums—your finishes, your style! Only five units remain, one already sold. Each 2200 sq ft, 3-bedroom, 3-bath condo includes a heated 2-stall garage, private patio, and versatile loft for office or lounge space. The main floor features open-concept living with 9’ ceilings, shiplap gas fireplace, quartz countertops, custom cabinetry, solid-core 3-panel doors, and LVP flooring. The kitchen offers a central island and walk-in pantry. Upstairs, the primary suite includes dual closets, an ensuite with dual vanities and a tiled shower, while the additional bedrooms share a Jack & Jill bath. Bonus features: laundry room with built-ins, in-floor heat on main level and garage, on-demand water heater. HOA covers lawn care, snow removal, garbage, sewer, and exterior maintenance. Includes 5-Year Tax Abatement and optional Freedom Boat Club membership. Near All Vets Golf, McIntosh State Park, and Hwy 18W. Call today—choose your finishes and secure your new home!
| 4 months ago | Listing updated with changes from the MLS® | |
| a year ago | Listing first seen on site |
Listing information is provided by Participants of the Iowa Association of REALTORS MLS. IDX information is provided exclusively for personal, non-commercial use, and may not be used for any purpose other than to identify prospective properties consumers may be interested in purchasing. Information is deemed reliable but not guaranteed. Copyright 2026, Iowa Association of REALTORS MLS.
Data last updated at: 2026-02-04 12:48 AM UTC

Did you know? You can invite friends and family to your search. They can join your search, rate and discuss listings with you.